В 2023-2024 году специалистами ООО «Фина-Проминжиниринг» совместно с OOO «Фина» была выполнена работа по комплексной поставке, сборке, монтажу, пуско-наладке оборудования «Линия по производству мясных консервов (5 туб в смену)» для Пружанского райпо.

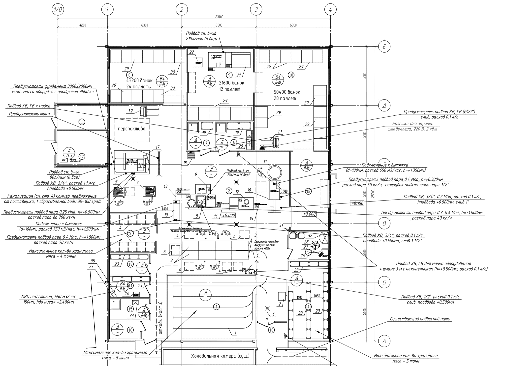
В рамках строительства нового цеха по производству мясных консервов на ОАО «Пружанский консервный завод» производительностью 5 туб в смену специалистами ООО «Фина-Проминжиниринг», в соответствии с техническим заданием заказчика, было закуплено и разработано необходимое технологическое оборудование.

Часть оборудования была закуплена у российского производителя ООО «Предприятие «Санти-Крым», в частности: машина закаточная, шпаритель корпуса банки, автомат для наполнения банок мясом, машина для мойки банок. Часть оборудования была закуплена у Китая, в частности: машина для резки мяса и подъёмник-опрокидыватель тележки. Остальное оборудование было разработано и изготовлено специалистами ООО «Фина-Проминжиниринг», в частности: стол накопительный поворотный, транспортёры консервных банок (3 шт.) и фаршемешалка.

Монтаж и пусконаладочные работы

Специалистами ООО «Фина-Проминжиниринг» был выполнен электромонтаж технологического оборудования, входящего в линию, в том числе: опуск лотков; прокладка кабелей; подключение шкафов и пультов автоматического управления; заземление корпусов оборудования.

Также специалистами были проведены пусконаладочные работы, в том числе: регулировка, настройка оборудования, входящего в состав технологической линии; пробный пуск оборудования с проверкой готовности и наладкой работы оборудования в комплекте с системами обеспечения – управления, регулировки, блокировки, защиты, сигнализации, автоматизации и связи, перевод оборудования на работу под нагрузкой; комплексное опробование оборудования с наладкой технологического процесса и выводом на устойчивый проектный технологический режим, обеспечивающий выпуск предусмотренной проектом первой партии продукции.

Отзыв ПРУЖАНСКОЕ РАЙОННОЕ ПОТРЕБИТЕЛЬСКОЕ ОБЩЕСТВО
Скачать
Image
Image
Оставьте заявку

    Ваше имя

    Ваш email

    Сообщение